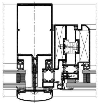
Technical characteristics:

  • The depth of the vertical line: 88-270 mm
  • Width: 60 mm of vertical line
  • Visible width slats poklopne: 60 mm

UW is ≥ 0.4 W/m ² K


We use the latest materials in the making of joinery, themselves famous renowned manufacturers, such as profile TROCAL, KBE, FEAL, ALUMIL.

Stolarija SAP by nolimit